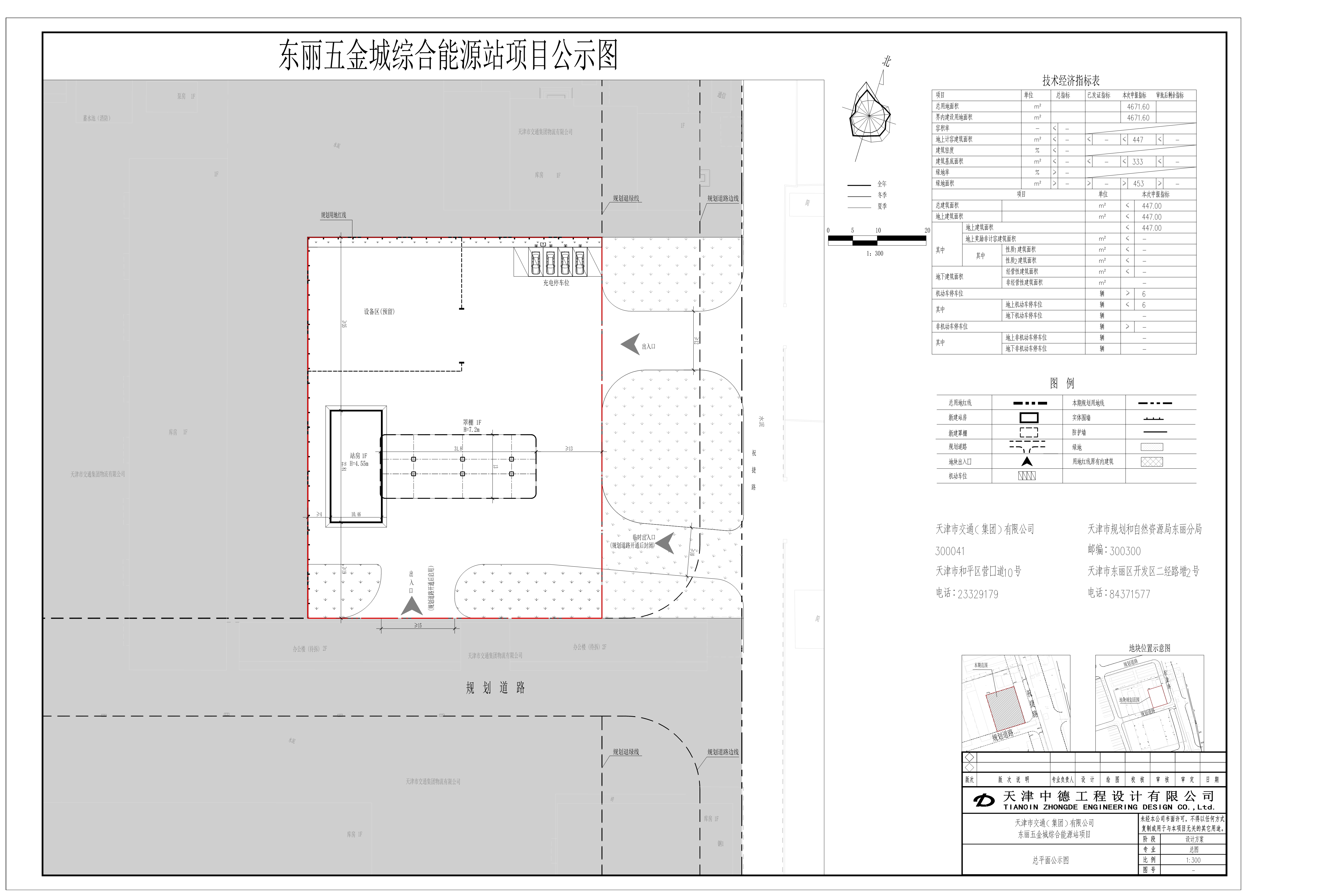
天津市规划和自然资源局东丽分局,依据《中华人民共和国城乡规划法》的有关要求,现将东丽五金城综合能源站建筑工程设计方案总平面图变更后进行公示,公示期为7个工作日。意见反馈请回复东丽分局建管科。
通讯地址:天津市东丽开发区二经路增二号
联系电话:022-84371577
邮政编码:300300

天津市规划和自然资源局东丽分局
2024年4月8日
版权所有:天津市东丽区人民政府门户网站 中文域名:天津市东丽区人民政府.政务 东丽区政府.政务
网站标识码:1201100002 津ICP备17009684号
津公网安备 12011002018073号