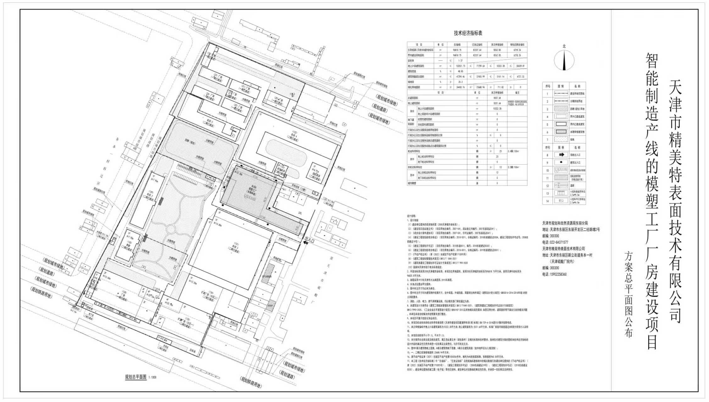
天津市规划和自然资源局东丽分局,依据《中华人民共和国城乡规划法》的有关要求,现将智能制造产线的模塑工厂厂房建设项目设计方案总平面图进行公布,公布期限为信息发布之日起至建设项目规划验收合格为止。
通讯地址:天津市东丽开发区二经路增二号
联系电话:022-84371577
邮政编码:300300

天津市规划和自然资源局东丽分局
2025年9月24日
版权所有:天津市东丽区人民政府门户网站 中文域名:天津市东丽区人民政府.政务 东丽区政府.政务
网站标识码:1201100002 津ICP备17009684号
津公网安备 12011002018073号