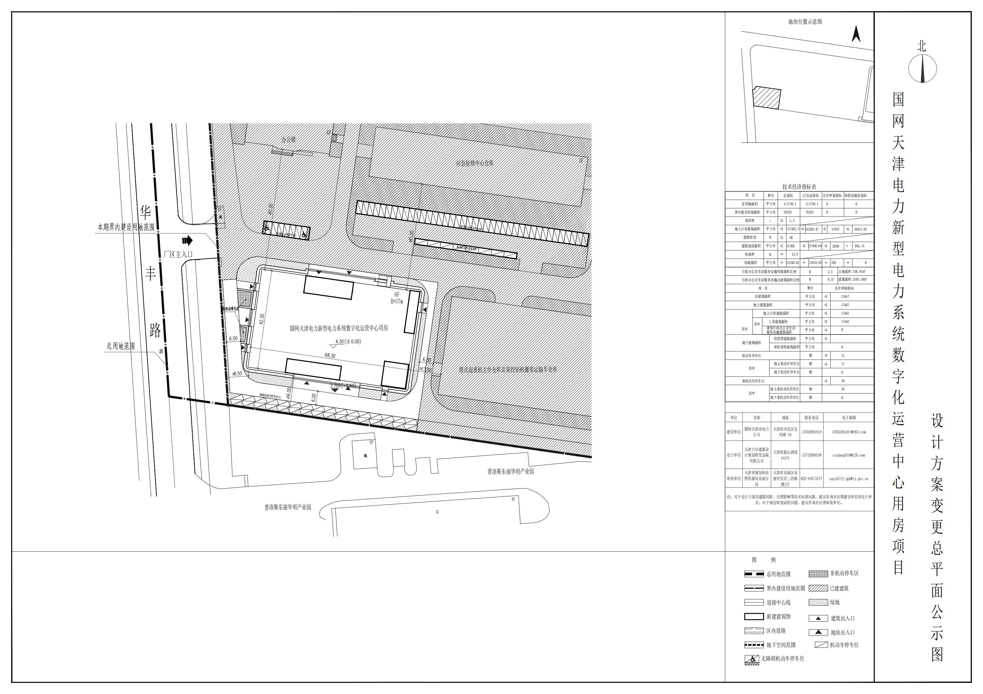
天津市规划和自然资源局东丽分局,依据《中华人民共和国城乡规划法》的有关要求,现将国网天津电力新型电力系统数字化运营中心用房项目建筑工程设计方案总平面图变更后进行公示,公示期为7个工作日。如有意见,请于公示期内进行反馈,逾期视为无意见。联系方式如下:
| 单位 | 名称 | 地址 | 联系电话 | 电子邮箱 |
| 建设单位 | 国网天津市电力公司 | 天津市河北区五经路 39 | 13502081619 | 13502051619@163.com |
| 设计单位 | 天津大学建筑设计规划研究总院有限公司 | 天津市鞍山西道192号 | 13752008190 | cxzhang910@126.com |
| 审批单位 | 天津市规划和自然资源局东丽分局 |
天津市东丽区东丽开发区二经路增2号 |
022-84371577 | sgzjdlfj-jgk@tj.gov.cn |
| 注:对于设计方案的建筑间距、日照影响等技术标准问题,建议咨询并反馈建设单位和设计单位,对于规划审批流程问题,建议咨询并反馈审批单位。 | ||||

天津市规划和自然资源局东丽分局
2025年11月5日
主办:天津市东丽区人民政府 版权所有© 承办:天津市东丽区人民政府办公室
网站标识码:1201100002 津ICP备17009684号-1
津公网安备 12011002018073号