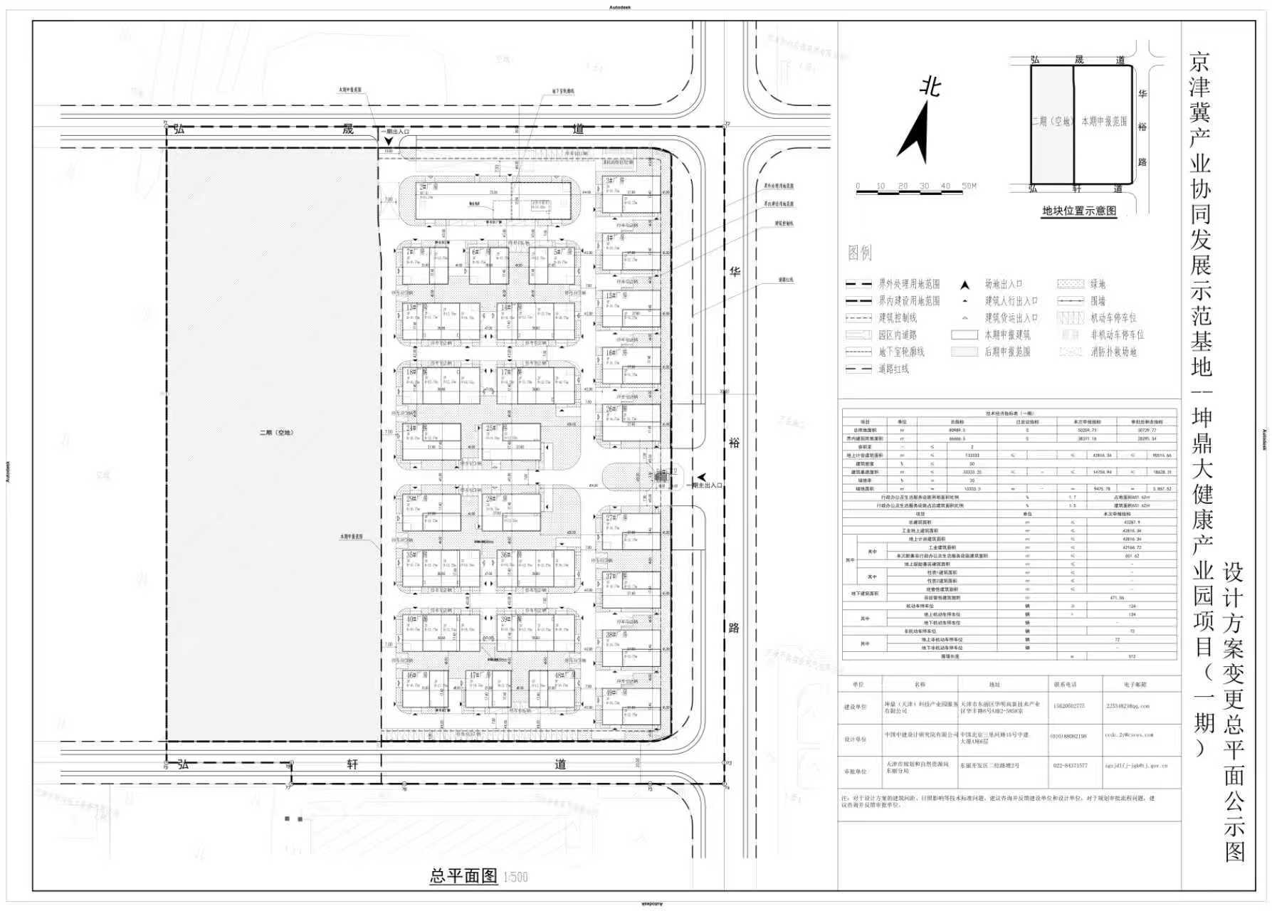
天津市规划和自然资源局东丽分局,依据《中华人民共和国城乡规划法》的有关要求,现将京津冀产业协同发展示范基地-坤鼎大健康产业园项目(一期)建设工程设计方案总平面图变更后进行公示,公示期为7个工作日。如有意见,请于公示期内进行反馈,逾期视为无意见。联系方式如下:
| 单位 | 名称 | 地址 | 联系电话 | 电子邮箱 |
| 建设单位 | 坤鼎(天津)科技产业园服务有限公司 | 天津市东丽区华明高新技术产业区华丰路6号A座2-5858室 | 15620502775 | 22534821@qq.com |
| 设计单位 | 中国中建设计研究院有限公司 | 中国北京三里河路15号中建大厦A座6层 | (010)88082198 | ccdc.2y@csces.com |
| 审批单位 | 天津市规划和自然资源局东丽分局 | 东丽开发区二经路增2号 | 022-84371577 | sgzjdlfj-jgk@tj.gov.cn |
| 注:对于设计方案的建筑间距、日照影响等技术标准问题,建议咨询并反馈建设单位和设计单位,对于规划审批流程问题,建议咨询并反馈审批单位。 | ||||

天津市规划和自然资源局东丽分局
2026年2月11日
版权所有:天津市东丽区人民政府门户网站 中文域名:天津市东丽区人民政府.政务 东丽区政府.政务
网站标识码:1201100002 津ICP备17009684号
津公网安备 12011002018073号